doc
zz
Giriş
Kayıt
Dizin
×
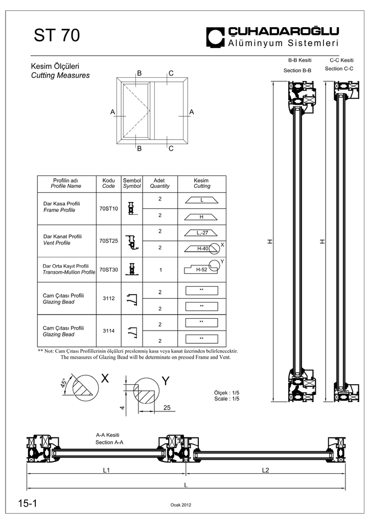
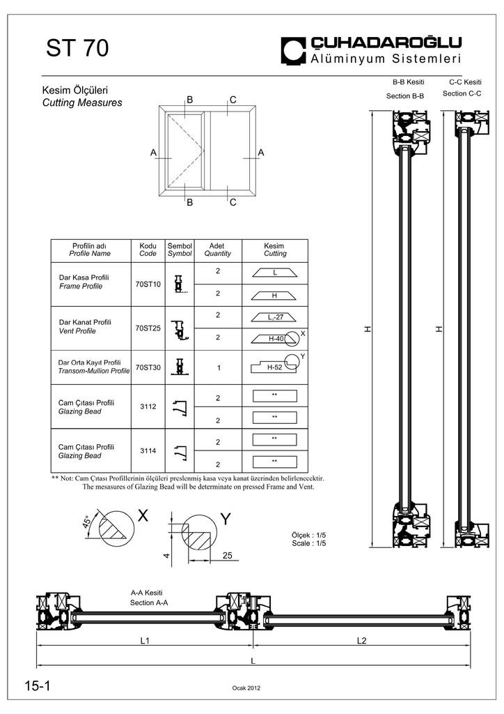
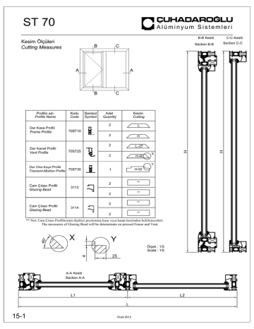
st-70 kesim ölçüleri
download
Şikayet
Transkript
st-70 kesim ölçüleri
Benzer belgeler